
Exklusives Wohnen am Fuße der Schwanenburg nähe Kermisdahl
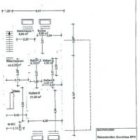
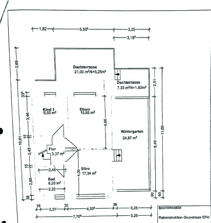
Diese Doppelhaushälfte mit großzügigem Wintergarten und Garage, Bj. 1969, ist mit Blick auf die Schwanenburg und die Stiftskirche auf einem ca. 420 m² großen Grundstück erbaut worden. Nach einer kompletten Entkernung sind noch einige Restarbeiten offen. Die lichtdurchflutete Wohnfläche von ca. 164 m² verteilt sich auf Wohn- Esszimmer mit offener, moderner Küche, Kaminzimmer, 3 Schlafzimmer und 2 Badezimmer. Der Spitzboden ist zum Teil ausgebaut und kann später zur zusätzlichen Wohnfläche zählen. Highlight des Objektes ist der beheizbare Wintergarten von ca. 25 m² mit Beschattungsanlage aus dem Jahre 2000.
Folgende Sanierungsarbeiten sind bereits durchgeführt:
Gas-Brennwert-Heizung (Bj. 2017) mit Warmwasseraufbereitung, Zu- und Abwasserleitungen erneuert, neue Elektrik im OG, Badezimmer OG entkernt und dort Fußbodenerwärmung installiert, Rollladenkästen inkl. Motoren und SOMFY IO (im OG), Wände verputzt und größtenteils doppeltverglaste Kunststofffenster aus 2008. Der Fischgrätenparkett ist in allen Wohnräumen erhalten geblieben. Ein bereits fertig gestelltes Duschbad befindet sich im Untergeschoss.
Weitere Ausstattungsdetails sind neuwertige Einbauküche mit Neff Geräten, neu angelegter Garten mit großem Gartentor, LAN Einrichtungen im OG, zwei Dachterrassen, Garage mit elektrischem Tor, Beschattungsmarkisen und Keller.
Interesse am Objekt?
Hier Kontakt aufnehmen
Arden Immobilien
Ringstraße 46
47533 Kleve
T: 0 28 21 - 97 33 70
E: info@arden-immobilien.de


