
Einfamilienhaus mit historischem Charme und vielseitigem Potenzial in begehrter Lage von Kleve
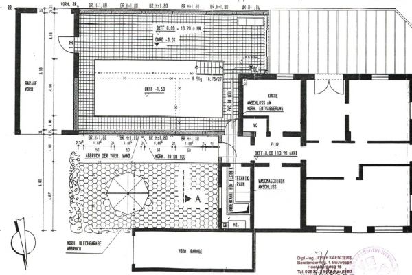
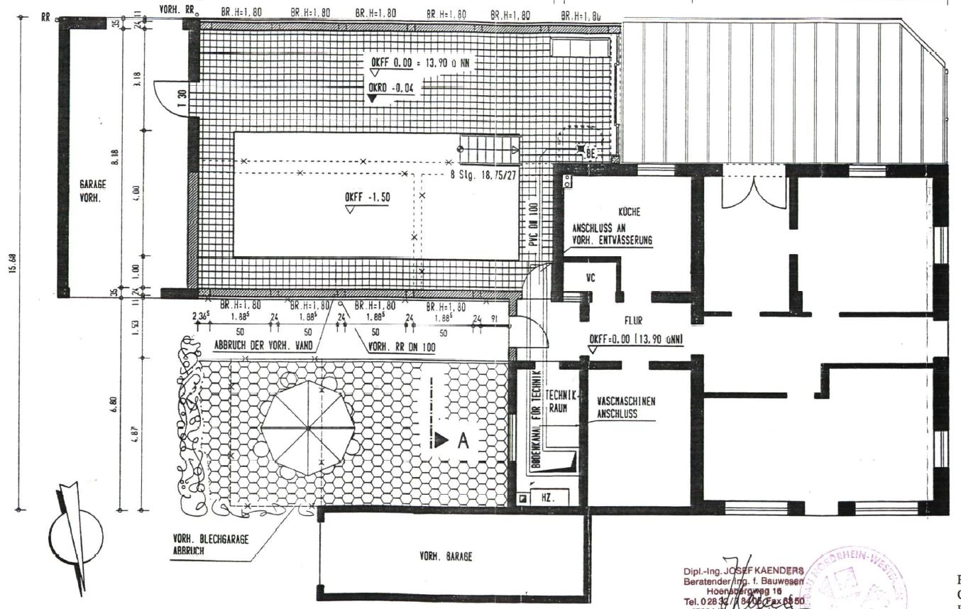
Dieses einzigartige, sanierungsbedürftige Einfamilienhaus aus dem Jahr 1840 vereint historischen Charme mit großzügigem Platzangebot auf ca. 290 m2 Wohnfläche, verteilt über drei Etagen. In exponierter Lage, auf ca. 1075 m², direkt unterhalb der Schwanenburg, bietet es eine der begehrtesten Adressen Kleves. Die Immobilie liegt ruhig am Kermisdahl, einem beliebten Naherholungsgebiet, und dennoch nur wenige Gehminuten von der Innenstadt entfernt – eine perfekte Kombination aus Natur und Stadtnähe.
Besondere Merkmale:
- Großzügiges Wohnhaus mit drei Etagen!
- Heller Wintergarten mit direktem Zugang zu einem stillgelegten, innenliegenden Schwimmbad
- Mehrere Garagen und Stellplätze für Ihre Fahrzeuge
- Großer Garten mit viel Platz zum Entspannen und Gestalten
Dieses Haus befindet sich in einem Mischgebiet und ist daher nicht nur für Familien interessant, sondern bietet auch ideale Voraussetzungen für Gewerbetreibende. Hier haben Sie die Möglichkeit, Wohnen und Arbeiten harmonisch zu verbinden.
Das Objekt ist momentan vermietet. Die Jahresnettomiete beträgt 15.600 e. Nutzen Sie diese seltene Gelegenheit und machen Sie sich selbst ein Bild von dieser besonderen Immobilie in einer der besten Lagen von Kleve!
Lage:
Die Stadt Kleve liegt am unteren Niederrhein an der deutsch- niederländischen Grenze und ist eine mittlere kreisangehörige Stadt des Kreises Kleve im Regierungsbezirk Düsseldorf. Der ”Niederrhein-Airport” ist mit dem Auto in 30-minütiger Fahrzeit erreichbar. Alle benötigten Einkaufsmöglichkeiten, Verkehrsanbindungen sowie Ärzte, Apotheken, Kindergärten, Schulen befinden sich in unweiter Entfernung.
Kaufpreis: 569.000 €
Sonstiges
Widerrufsrecht:
Ihr Widerrufsrecht ist in § 355 des BGB geregelt und schützt Sie als Verbraucher vor vertraglichen
Bedingungen. Sie als Verbraucher haben das Recht, sich unter bestimmten Voraussetzungen von
einem bereits geschlossenen Vertrag innerhalb gesetzlicher Fristen durch Erklärung des Widerrufs
zu lösen.
Geldwäsche:
Als Immobilienmaklerunternehmen ist Arden Immobilien nach § § 1, 2 Abs. 1 Nr. 10, 4 Abs. 3 Geldwäschegesetz (GwG) dazu verpflichtet, vor Begründung einer Geschäftsbeziehung die Identität des Vertragspartners festzustellen und zu überprüfen. Hierzu ist es erforderlich, dass wir die relevanten Daten Ihres Personalausweises festhalten - beispielsweise mittels einer Kopie.
Interesse am Objekt?
Hier Kontakt aufnehmen
Arden Immobilien
Ringstraße 46
47533 Kleve
T: 0 28 21 - 97 33 70
E: info@arden-immobilien.de
Interesse am Objekt?
Hier Kontakt aufnehmen
Arden Immobilien
Ringstraße 46
47533 Kleve
T: 0 28 21 - 97 33 70
E: info@arden-immobilien.de


