Zentrales 3- Familienhaus Kleve - Oberstadt

Objektbeschreibung
 

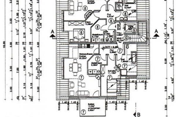
Diese vermietete Dachgeschosswohnung überzeugt durch eine moderne Aufteilung und ihre zentrale Lage im Herzen von Kleve. Die ca. 73 m2 Wohnfläche verteilen sich auf zwei gut geschnittene Schlafzimmer, eine offene Küche mit angrenzendem Wohn- und Essbereich, ein Tageslichtbad, ein separates Gäste-WC sowie einen praktischen Abstellraum.


Große Fensterflächen sorgen für ein angenehmes Wohnklima und viel Tageslicht. Der offene Wohnbereich schafft eine luftige Atmosphäre und bietet ausreichend Platz für gemeinsames Kochen, Essen und Entspannen.


Die Wohnung befindet sich im Dachgeschoss eines gepflegten Mehrparteienhauses mit Aufzug – so ist der Zugang auch komfortabel und nahezu barrierearm möglich. Die zeitgemäße Ausstattung, die durchdachte Grundrissgestaltung sowie der im Preis enthaltene Tiefgaragenstellplatz runden das attraktive Angebot ab.


Beheizt wird die Immobilie über eine energieeffiziente Wärmepumpe – ein zukunftsorientiertes System, das sowohl wirtschaftlich als auch ökologisch überzeugt.

 

 

 
 
Ausstattung
 
- Baujahr 2011 – moderner und gepflegter Zustand
- Wärmepumpenheizung – ressourcenschonend und effizient
- Offene Küche mit großzügigem Wohn-/Essbereich
- Zwei Schlafzimmer
- Tageslichtbad mit Badewanne
- Separates Gäste-WC
- Abstellraum in der Wohnung
- Aufzug vorhanden – bequem bis ins Dachgeschoss
- Tiefgaragenstellplatz inklusive
- Vermietet – ideal für Kapitalanleger
- Jahresnettomiete 7.740,00 EUR
 
 
Lage
 
Die Klever Oberstadt zeichnet sich durch ihre charmante Atmosphäre aus und bietet eine optimale Anbindung an die umliegenden Infrastrukturen. Einkaufsmöglichkeiten, Schulen und öffentliche Verkehrsmittel sind bequem zu Fuß erreichbar, während Sie die Ruhe des Wohnviertels genießen können.
 
Die Stadt Kleve liegt am unteren Niederrhein an der deutsch-niederländischen Grenze und ist eine mittlere kreisangehörige Stadt des Kreises Kleve im Regierungsbezirk Düsseldorf. Der ”Niederrhein-Airport” ist mit dem Auto in 30-minütiger Fahrzeit erreichbar. Alle benötigten Einkaufsmöglichkeiten, Verkehrsanbindungen sowie Ärzte, Apotheken, Kindergärten, Schulen befinden sich in unweiter Entfernung.
 
Zum Kreis Kleve:
Der Kreis Kleve liegt im Nordwesten Deutschlands an der Landesgrenze zu den Niederlanden. In einem Umkreis von 2 Autostunden leben mehr als 30 Millionen Menschen. Drei Bundesautobahnen, der Rhein-Waal-Terminal in Emmerich, der Anschluss an die EC-Strecke Köln-Amsterdam verbinden den Kreis Kleve mit den internationalen Absatz- und Beschaffungsmärkten. Im Norden grenzt sie an die Gemeinde Millingen a/d Rijn und die Stadt Emmerich am Rhein, im Osten an die Stadt Kalkar, im Süden an die Gemeinde Bedburg-Hau und im Westen an die Gemeinde Kranenburg. Gute Verkehrsanbindungen über die A57(Köln/Nijmegen) und die A3 (Oberhausen/Arnheim).
 
 
 
 
 
 
 
Sonstiges
 
Der Maklervertrag mit Arden Immobilien kommt entweder durch schriftliche Vereinbarung oder auch durch Inanspruchnahme unserer Maklertätigkeit zustande. Sollte das von Arden Immobilien nachgewiesene Objekt bereits bekannt sein, teilen Sie uns dieses bitte unverzüglich mit. Die Courtage in Höhe von 3,57 % des Kaufpreises inklusive 19 % gesetzliche MwSt. ist bei notariellen Vertragsabschluss fällig und zu diesem Zeitpunkt vom Käufer an Arden Immobilien zu zahlen.
 
 
Widerrufsrecht:
 
Ihr Widerrufsrecht ist in § 355 des BGB geregelt und schützt Sie als Verbraucher vor vertraglichen Bedingungen. Sie als Verbraucher haben das Recht, sich unter bestimmten Voraussetzungen von einem bereits geschlossenen Vertrag innerhalb gesetzlicher Fristen durch Erklärung des Widerrufs zu lösen.
 
 
Geldwäsche:
 
Als Immobilienmaklerunternehmen ist Arden Immobilien nach § § 1, 2 Abs. 1 Nr. 10, 4 Abs. 3 Geldwäschegesetz (GwG) dazu verpflichtet, vor Begründung einer Geschäftsbeziehung die Identität des Vertragspartners festzustellen und zu überprüfen. Hierzu ist es erforderlich, dass wir die relevanten Daten Ihres Personalausweises festhalten - beispielsweise mittels einer Kopie.

Interesse am Objekt?
Hier Kontakt aufnehmen

Arden Immobilien

Ringstraße 46
47533 Kleve
T: 0 28 21 - 97 33 70
E:

Interesse am Objekt?
Hier Kontakt aufnehmen

Arden Immobilien

Ringstraße 46
47533 Kleve
T: 0 28 21 - 97 33 70
E:

Provision
Angebot plus 3,57% Vermittlungs- bzw. Nachweisprovision einschl. MWSt. vom Kaufpreis, fällig nach Abschluß des Kaufvertrages. Die Objektangaben basieren auf die uns erteilten Verkäuferinformationen. Eine Haftung für deren Richtigkeit können wir nicht übernehmen. Verkaufsverhandlungen werden nach Absprache mit dem Makler geführt. Es gelten die allgemeinen Geschäftsbedingungen. Gerichtsstand für alle Vertragspartner ist Kleve.