
Ruhige gelegene Doppelhaushälfte in Kleve - Kellen
Beschreibung:
Diese gepflegte Doppelhaushälfte aus dem Jahr 2004 überzeugt mit einer durchdachten
Raumaufteilung und befindet sich in einer ruhigen Sackgasse in Kleve - Kellen.
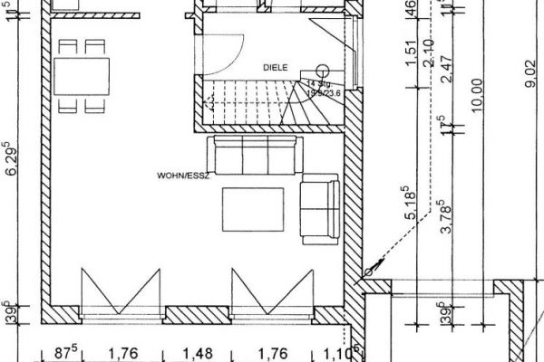
Im Erdgeschoss erwartet Sie ein großzügiger Wohn- und Essbereich mit Ausgang in den Garten
und offener Küche. Die vorhandene Einbauküche ist bereits im Kaufpreis enthalten.
Von hier aus gelangen Sie direkt auf die Terrasse, die dank der hochwertigen Überdachung
wetterunabhängig genutzt werden kann. Der schön angelegte Garten verfügt über einen massivem
Schuppen, welcher zusätzlichen Stauraum und Platz für Hobby oder Freizeit bietet.
Das Objekt ist zur Zeit vermietet. Die Jahresnettomiete beträgt 11.520 €.
Lage:
Kellen ist ein Stadtteil von Kleve, der sich durch eine Mischung aus Wohngebieten, landschaftlicher
Nähe und einer interessanten Geschichte auszeichnet. Es ist einer der größten Stadtteile
außerhalb des Kerns und geht baulich direkt in das Stadtgebiet über. Der Naturpark Kellen ist eine
wichtige grüne Oase mit einem See, Sitzgelegenheiten und einem Spielplatz, die sich gut für
Spaziergänge und Erholung eignet.
Ausstattung Beschreibung:
- zusätzliche Nutzfläche im ausgebauten Spitzboden
- gepflegte Einbauküche im Kaufpreis enthalten
- Gaszentralheizung
- hochwertige Terrassenüberdachung
- Carport
- Außenstellplatz
- massiver Gartenschuppen
- Gäste-WC
- ruhige Wohnlage
Diese Doppelhaushälfte bietet eine ideale Kombination aus Komfort, Funktionalität und
gepflegtem Zustand – perfekt für Paare oder Familien, die Wert auf ein gemütliches Zuhause mit
Garten legen.
Einziehen und wohlfühlen lautet hier die Devise!
Kaufpreis: 349.000 €
Sonstiges
Der Maklervertrag mit Arden Immobilien kommt entweder durch schriftliche Vereinbarung oder auch durch Inanspruchnahme unserer Maklertätigkeit zustande. Sollte das von Arden Immobilien nachgewiesene Objekt bereits bekannt sein, teilen Sie uns dieses bitte unverzüglich mit. Die Courtage in Höhe von 3,57 % des Kaufpreises inklusive 19 % gesetzliche MwSt. ist bei notariellen Vertragsabschluss fällig und zu diesem Zeitpunkt vom Käufer an Arden Immobilien zu zahlen.
Widerrufsrecht:
Ihr Widerrufsrecht ist in § 355 des BGB geregelt und schützt Sie als Verbraucher vor vertraglichen Bedingungen. Sie als Verbraucher haben das Recht, sich unter bestimmten Voraussetzungen von einem bereits geschlossenen Vertrag innerhalb gesetzlicher Fristen durch Erklärung des Widerrufs zu lösen.
Geldwäsche:
Als Immobilienmaklerunternehmen ist Arden Immobilien nach § § 1, 2 Abs. 1 Nr. 10, 4 Abs. 3 Geldwäschegesetz (GwG) dazu verpflichtet, vor Begründung einer Geschäftsbeziehung die Identität des Vertragspartners festzustellen und zu überprüfen. Hierzu ist es erforderlich, dass wir die relevanten Daten Ihres Personalausweises festhalten - beispielsweise mittels einer Kopie.
Interesse am Objekt?
Hier Kontakt aufnehmen
Arden Immobilien
Ringstraße 46
47533 Kleve
T: 0 28 21 - 97 33 70
E: info@arden-immobilien.de
Interesse am Objekt?
Hier Kontakt aufnehmen
Arden Immobilien
Ringstraße 46
47533 Kleve
T: 0 28 21 - 97 33 70
E: info@arden-immobilien.de


